- Einfamilienhaus
Charmantes Einfamilienhaus mit großem Grundstück in Ottendorf-Okrilla
- Gasheizung (2023 erneuert)
- detailreiche Holzarbeiten und farbige Glasakzente
- Wintergarten und Balkon für helle Wohnmomente
- Sauna im Nebengebäude – Wellness im eigenen Zuhause
- gepflegter, befahrbarer Innenhof
- modernisierte Fassade (2008)
- insgesamt sehr gepflegter Zustand
Objektbeschreibung
Dieses gepflegte Einfamilienhaus in einer ruhigen Wohngegend von Ottendorf-Okrilla überzeugt mit großzügiger Raumaufteilung, liebevollen Details und einer hervorragenden Infrastruktur. Auf einer Wohnfläche von rund 160 m² finden Familien reichlich Platz zum Leben, Arbeiten und Wohlfühlen. Das Haus präsentiert sich in einem sehr guten Zustand – zahlreiche Renovierungen wurden bereits durchgeführt (Fassade 2008, Heizung 2023).
Raumaufteilung
Erdgeschoss: gemütliches Wohnzimmer, Esszimmer, Wintergarten, Küche, Arbeitszimmer, Abstellkammer, Windfang sowie Flur mit Treppenaufgang.
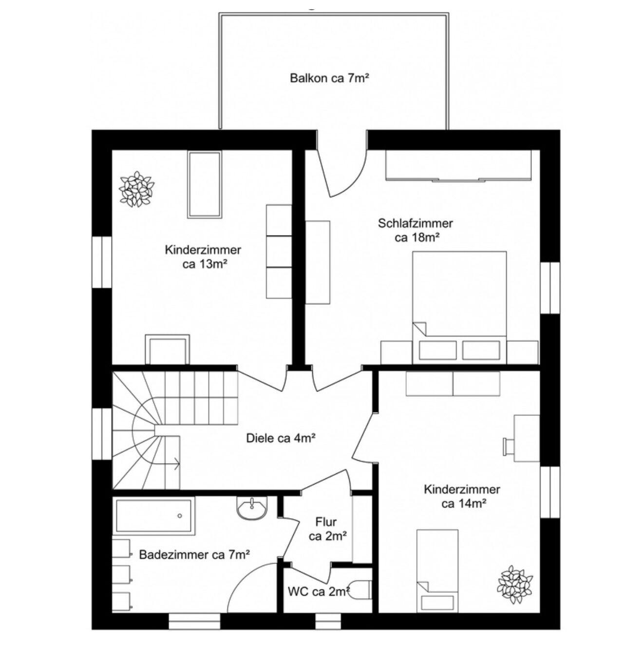
Obergeschoss: drei helle Schlafzimmer, ein Badezimmer, separates WC, Flur sowie Balkon.
Weitere Bereiche: Dachboden, Keller mit Heizungs-, Vorrats- und Wäschekeller, Nebengelass mit Garage und eigener Sauna.
Lage & Umgebung
Die Lage ist ideal für Familien: Schulen, Kindergärten und Einkaufsmöglichkeiten befinden sich in unmittelbarer Nähe. Das Ottendorfer Shopping-Zentrum erreichen Sie in wenigen Minuten, und auch die Anbindung an die Autobahn sowie den öffentlichen Nahverkehr ist hervorragend. So genießen Sie ruhiges Wohnen und zugleich kurze Wege in die Stadt.
- Grundschule: 0,5 km
- Realschule: 0,5 km
- Gymnasium: 11,8 km
- Autobahn: 1,8 km
- Zentrum: 1,1 km


Ihr direkter Kontakt zur Immobilie
Ein Zuhause mit Charakter, in dem Tradition auf Komfort trifft. Ob gemütliche Abende im Wohnzimmer, entspannte Stunden im Wintergarten oder Wellnessmomente in der hauseigenen Sauna – hier entstehen Erinnerungen fürs Leben. Das gepflegte Einfamilienhaus ist ein wahres Schmuckstück und bietet beste Voraussetzungen für glückliche Jahre mit der ganzen Familie.





